page 1
page 2
page 3
page 4
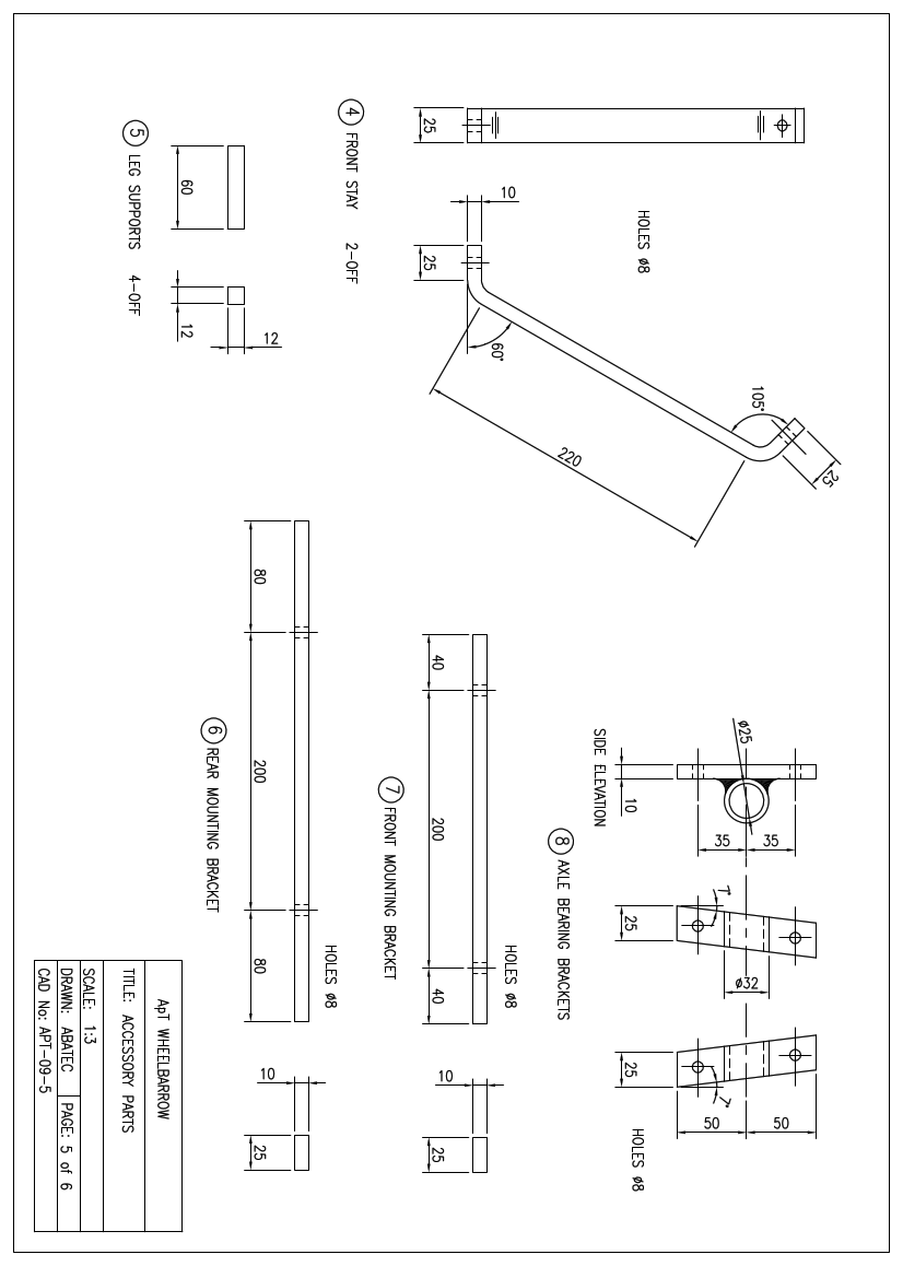
page 5 page 6
< prev - next > Transport and infrastructure Human powered carrying devices wheelbarrow (Printable PDF)