|
Pigs
|
| Introduction | Feeding pigs | |||
| Pig Health and Welfare | Common pests and diseases in pigs | |||
| Breeds and Breeding | Review Process | |||
| Piglet management | Information Source Links | |||
| Housing |
Introduction
Origin of pigs
The pig is one of the oldest domesticated animals. It is found throughout the world especially in regions where there are no social or religious objections to pork consumption.Majority of the breeds we now know are descended from the Eurasian Wild Boar (Sus scrofa). Archaeological evidence from the Middle East indicates domestication of the pig occurs as early as 9,000 years ago, with some evidence for domestication even earlier in China. Figurines, as well as bones, dating to the sixth and seventh millennia BC have been found at sites in the Middle East. Pigs were also a popular subject for statuettes in ancient Persia.
From here, the pig spread across Asia, Europe and Africa. One interesting point, while most livestock were utilized initially by nomadic peoples, swine are more indicative of a settled farming community. The reason for this is simply that pigs are difficult to herd and move for long distances. Pigs have become vital to the economy in parts of the world. For example, there exists a "pig culture" in New Guinea as strong and complex as any African culture based on cattle.
Background of pig production in Kenya
Pig production in Kenya has a long history dating back to 1904 when the first pigs were imported into the country from Seychelles. The production of surplus cereals and skim milk provided the basis for pigs as a subsidiary for the British settlers who operated large-scale commercial farms during the colonial period (1900-1963) but since then pig rearing has been in the hands of small scale farmers who now constitute up to 70% of the total pig farmers.The industry has been in the hands of the private sector for many years, apart from the time when Uplands Bacon factory under the Pig Industry Board had the monopoly. The factory collapsed and was wound up in 1987. After the collapse, pig processing has mainly remained with the Farmers Choice Ltd processing well over 70% of the pork produced in the country. Other players include Chefs' Choice, Hurlingham Butcheries, Oscar foods (Kikuyu), and many local pork butcheries in urban centres across the country.
The Government has continued to encourage pig production as it plays a major role in the tourism sector. The latest intervention by the Government was the introduction of the ADB/GOK sponsored pig project which ended in year 2000 and was providing much needed credit and technical information in the industry. This industry has since withstood periodic fluctuations, common in the pig industry to become one of the East African countries with a well established pig industry.
Pig production is mostly based on commercial concentrates whose quantity and quality of feeds fed varies from region to region and farm to farm. Keeping of scavenging pigs, which requires a minimum amount of inputs, is also common. However, in order to control pig diseases pig farmers are mandated to provide pig-proof paddocking to prevent wild-domestic pig contact (Legal notice number 71 of 1966-The Animal Diseases Act, Cap364.). Free loitering pigs scavenging in dumping sites and market places is prohibited by law.
About 65% pig farming is practiced in Central Province, Rift Valley and Western Provinces. The production cycle in the pig Industry is influenced to a large extent by the tourism sector. During peak tourism periods (June to August) and (December to January), pork demand is highest hence the players target this period. When tourism is off peak, the market suffers a glut (more pigs than the market can consume) leading to low pig producer prices.
Products present in the market: bacon, ham, pies, rolls, sausages, pork cuts, tallow & lard. Pig manure is used on farms as fertilizer.
Population growth, urbanization and improved living standards have fuelled demand for meat and pork being cheap to produce compared to beef, has a bright future in the country.
The pig industry is characterized by farms having 2 - 5 sows weaning 1-2 small litters yearly. This low productivity may be attributed to any of the following:
- A short sow productive life (sow culled early due to poor productivity).
- Generally, poor sow nutrition especially during the gestation and lactation periods.
- Poor housing that predispose the sows to stress
- Poor quality boars or mating system
- Poor feed quality, high feed prices leading to inadequate feeding
- Presence of sub-clinical reproductive diseases leading to low litter size and high pre-weaning mortality
- Long fattening period leading to low returns
- Market demand fluctuation: during periods of high demand the country has had to import pork products to fill the gap
Pig Health and Welfare
The following issues are most relevant to pig production:
General
- Livestock production has to be land-based (i.e. livestock forms an integral part of the crop rotation system on the farm; landless livestock production is not acceptable.
- Conventional pigs have to be reared under organic standards for six months before they are considered organic (i.e. the first litter after the conversion period can be sold as organic). Simultaneous conversion of land and livestock is possible as long as most of the feed for the animals comes from the converting farm.
- The choice of breeds or strains should favor pigs that are well adapted to the local conditions and to the husbandry system intended. Vitality and disease resistance are particularly mentioned, and preference should be given to indigenous species.
Origin of animals and conversion
- When an organic herd is constituted for the first time, conventionally reared piglets can be bought at weaning (at less than 25 kg) and reared as organic.
- An established breeding herd can bring in gilts from non-organic holdings to allow for natural growth in the herd to a maximum of 20% of the herd, if organically reared animals are not available. This number of bought-in breeding animals can be increased under special circumstances (major expansion, change of breed, new specialization developed).
- Boars can be brought in from non-organic holdings.
- Livestock brought in from non-organic holdings for breeding purposes cannot be sold as organic either for slaughter or for breeding.
Feeding
|
|
- Disease prevention must be based on breed selection, husbandry, high quality feed, free range conditions allowing regular exercise and appropriate stocking densities;
- Sickness and injury must be treated immediately ;
- Herbal medicine, homeopathy and trace elements and vitamins should be used in preference to chemically synthesized allopathic veterinary medicinal products, but only if they are likely to be effective. Otherwise, allopathic treatments must be used to avoid suffering, under the supervision of a veterinarian. Similarly, statutory disease control measures must be carried out ;
- Preventive use of allopathic medicine and antibiotics, growth promoters and hormonal products to synchronize or induce oestrus are prohibited;
- All treatment with allopathic medicine must be recorded, including diagnosis, duration and statutory withdrawal period and a withdrawal period of twice the statutory withdrawal period must be observed (if no statutory withdrawal period is given, a 48-hour withdrawal must be observed) ;
- If a sow or a boar is treated with more than two courses of allopathic treatments in a year (or a piglet in a lifetime) it loses its organic status and must be reconverted or slaughtered as non-organic (vaccinations, treatments for parasites and statutory disease control measures are not taken into account).
Husbandry
- Tail-docking, teeth-clipping and tethering are prohibited;
- Artificial insemination and castration are allowed.
For information on Animal Welfare and Organic Certification Norms in Pigs see under following link click here
Breeds and Breeding
The main breeds in Kenya
Large White
![]() |
| Large white sow |
| © S. Gikonyo, Kenya |
Large white are found practically in all crossbreeding and rotational breeding programmes. Sows have an enviable reputation as dams and form the foundation of the classic F1 hybrid gilt. They are the favourite breed in the country and the world over.
![]() |
| Large white boar |
| © S. Gikonyo, Kenya |
Landrace
![]() |
| Landrace sow |
| © S. Gikonyo, Kenya |
Sows produce and rear large litters of piglets with very good daily gain ( ADG) and high lean meat content ideal for either pork or bacon production.
![]() |
| Landrace boar |
| © S. Gikonyo, Kenya |
Duroc - (Duroc-Jersey)
![]() |
| Duroc sow |
| © S. Gikonyo, Kenya |
![]() |
| Duroc boar |
| © S. Gikonyo, Kenya |
Hampshire
![]() |
| Hampshire sow |
| © S. Gikonyo, Kenya |
![]() |
| Hampshire boar |
| © S. Gikonyo, Kenya |
Pietrain
![]() |
| Pietrain sow |
| © S. Gikonyo, Kenya |
![]() |
| Pietrain boar |
| © S. Gikonyo, Kenya |
Other pig breeds not reared in the country: Large black, Middle white, Tamworth, Welsh, Berkshire, Wessex Saddleback.
Source of breeds
- Mainly from Farmers Choice Ltd (a leading pork processor)
- Replacement from own herd
- Other small-scale breeder farmers
Choice of Breed
Large white is robust, adaptable and of higher performance than most other breeds. It is preferred by most pig farmers in the tropics. The breed is known worldwide and there are no problems obtaining breeding stock from a variety of sources. It is used for the improvement of other breeds e.g. Landrace.Duroc - Jersey also has good attributes for both rearing and growth in the tropics. Traditionally Durocs have been use as terminal sires.
Landrace pigs have been widely used for crossbreeding purposes in the tropics. They do well under close confinement feeding but must be well managed and fed.
Selection of Breeding Gilts
- Gilts selected to have at least 12 teats so as to accommodate a large litter
- Gilts to be selected from sows, which wean 9 -10 or more piglets per litter and are known to be good mothers.
- Select breeding gilts at weaning period, further selection should be done at 5 - 6 months of age.
- Select fast growing weaners. These will likely consume less feed per unit live weight gain and are thus less costly to keep.
- Select gilts which have well developed hams and comparatively light heads.
- The selected gilts should have good body conformation i.e. strong legs, sound feet etc.
Selection of Breeding Boars
It is extremely important to select a good boar since it contributes half the quality of the herd.
Areas to consider:
- Boar to have sound feet with good, full hams, uniform curve at the back and of good length.
- Boar to have at least 12 nicely placed rudimentary teats so as to pass on this characteristic.
- Selection to be done before castration i.e. at 4 weeks.
Breeding Programs - Breeding models
Pure-breeding: mating purebred individuals of the same breed. The progeny has the same genetic makeup. The major objective of pure-breeding is to identify and propagate superior genes for use in commercial production primarily in crossbreeding programs as well as to propagate and identify superior females for maintaining valuable genetic material. Furthermore crossbreeding will not be worthwhile unless superior pure bred individuals are used.
Cross breeding: mating two individuals from different breeds thus introducing into the progeny a gene combination that is different from that existing in either parent or in the breed of either parent. Cross breeding can involve two or more breeds, depending on the desired result. The sole purpose of cross breeding is to take advantage of the observed improvement in performance of the progeny above that of either parent. This is known as hybrid vigour or heterosis.
Out breeding: mating individuals of the same breed but which are less closely related than the average of the breed. There should not be a common ancestor for at least four generation back in the pedigree of the boar and the females with which he is mated. It is a useful mating system in purebred individuals.
In breeding: mating individuals of the same breed but which are more closely related than the average of the breed. This could be between such close individuals as those from the same litter or a boar and his daughter. Inbreeding is rarely practiced because it can cause problems such as a decrease in litter size and increases mortality. Inbred sows are inferior in milking and mothering ability. It delays sexual maturity in gilts and boars. Inbred boars have less sexual libido. Inbred gilts have fewer eggs during oestrus and farrow smaller litters than those out bred.
Breeding Strategy
Breeding is a complex science that requires skill and knowledge. It also requires thorough record keeping. To achieve genetic improvement the following methods can be used:
- Selection: select the best individuals in the herd for breeding, looking at their performance in various characteristics e.g. litter size, growth rate, feed conversion ratio, disease resistance etc.
- Culling: remove the individuals that do not perform well.
Practical cross breeding
As mentioned above crossbreeding has two advantages:
- It exploits heterosis, this occurs when two breeds which are genetically different are crossed.
- Ability to combine two or more individuals that have desirable characteristics.
![]() |
| Classic two way cross |
| © S. Gikonyo, Kenya |
![]() |
| Three way cross breeding |
| © S. Gikonyo, Kenya |
Artificial Insemination (A.I)
Artificial insemination is becoming popular in pig breeding. It is not a difficult procedure and, provided the basic guidelines are followed, it can be highly successful. The principles of oestrus detection, timing and frequency of insemination do not differ from those employed when using natural mating. However it is important to ensure that:
- Suitable equipment is used
- Suitable insemination environment
- Proper insemination techniques.
- Well stored and viable semen.
Management of Breeding Stock
a) Boars
A boar can start serving when it is above 8 months of age. During the first two months of service, the boar should serve only twice per week. After this it can be used up to six services per week. The boar should be kept in its own pen to avoid fighting. When mating transfer the sow to the boar.
- One boar can serve up to 15 sows
- Considerable exercise is necessary to prevent the development of leg weaknesses.
- The boar's feet should be trimmed regularly as deemed necessary.
- Boars should be washed with soap and water every 4 months and sprayed for the lice and mange.
- The pen walls should be white washed with a wash containing Gamma BHC at the same time.
b) Gilts/sows
- Provide enough exercise as some sows will tend to fatten if not exercised. A fat sow takes longer to come on heat. It is also more likely to crush her young piglets.
- First service for gilts should not be until the age of 7 - 8 months and the weight to be 100 - 130 kg. Sexual maturity occurs as early as 4 - 5 months. Reproductive life of a sow is 4 - 5 years.
- Keep about 3-4 gilts/sows per pen of 9-10 square metres which should be kept clean (change bedding regularly). The pens of sows/gilts should be next to the boars to stimulate them to come on heat.
Breeding Cycle. The normal heat period lasts for 3 - 5 days
Heat signs:
1st stage: Early heat signs
- General restlessness
- Vulva turns red and is swollen
- White mucus discharge
- Real Oestrus lasts for 40 - 60 hours
- Vulva becomes less red and swollen
- Slimy mucus discharge
- Tendency to mount and be mounted by others.
- The sow or gilt will stand still when pressure is applied to her back (can accept a man's weight sitting on her. Thus the right stage to send her to the boar).
- The sow/gilt will not stand still when pressure is applied to her back.
- The swelling of the vulva disappears.
The usual length of oestrus cycle is 3 weeks (21 days) but shorter or longer periods may be seen in the range of 18-24 days.
Moment of serving / Insemination
The length of heat period is very variable among sows/ gilts. Ovulation always takes place when 70% of the length of a heat period has passed. Knowledge of the specific heat period of a particular sow is necessary so as to optimize the moment of insemination/service.
ADVICE: Serve or Inseminate 24 hours before ovulation.
Recommended practices:
Usually only a few of the signs will be seen- Put the sow with the boar for a short period every day when the heat is expected.
- Always take the sow to the boar. This is less upsetting for him.
- Put the sow and boar together just before feeding.
- Allow the boar to serve twice, with an interval of about 12 hours between services. If the sow doesn't conceive, she will return on heat in about 3-week's time.
- 10 days before service, give the sow/gilt 1 - 2 kg of extra feed extra per day. Continue this for one week after service.
- During the last month of pregnancy, give 0.5 kg extra feed per day but decrease this gradually one week before farrowing. Provide plenty of water to help prevent congested gut during farrowing.
- Each boar should be kept in its own pen to avoid fighting.
Stimulating regular heat
- Remove the sow from the piglets early (at 4 - 6 weeks of age) and all at once.
- Take the sow to a house with dry sows.
- Put the sow close to a boar, in a way that makes direct contact (hear , see, smell) possible.
- The sow should not be given any feed on the day of weaning.
- The next day feed about 4 kg/day. This is called flushing and should be done for a maximum of 10 days or until the service takes place.
- Put the sows in groups (stress stimulates heat)
- If there are heat problems, change the type of feed for a few days.
- Maintain a good climate; see to it that there is sufficient light in the house.
- Sows should not be too fat or too thin when they are served. It is important to keep this in mind when determining the ration during the suckling period.
Sow is in gestation when:
- after 21 days of serving she does not show heat signs.
- Echo scan pregnancy detection (done by a veterinary) 23 - 35 days after service gives positive results.
Culling
- Sows that are difficult to get in-pig (pregnant) or which only manage to rear small litters should be sold off.
- Boars which are infertile or moderately infertile should be culled
Farrowing and birth management
Expected date of birth
On average pregnancy lasts 115 days after conception (3 months, 3 weeks and 3 days). In gilts the udder begins to develop after two months of pregnancy. In the last 14 days of pregnancy the udder will increase in size. It feels firmer, and the nipples stand out more towards the end of the pregnancy.
![]() |
| Sow production cycle |
| © S. Gikonyo, Kenya |
Farrowing preparation measures and birth of piglets
About a week before the expected delivery date, the sow should be:
- Washed with soap and water and then rinsed with a mild disinfectant.
- Dewormed and treated for lice and mange. Any good acaricide (cattle dip) can be sprayed on the sow or gilt to kill the lice and ticks. An ordinary sprayer can be used for spraying, following manufacturer's instructions for mixing the dip with water.
- Immediately after washing she should be put in a pen of her own. The pen should be disinfected before the pregnant sow is put in. Putting the sow in the farrowing pen a week before the birth will also help her get used to the new surroundings. This increases chance of a quiet and smooth farrowing. It makes individual feeding of the sow possible.
- 2 days before farrowing, the sow and the pen should be washed and disinfected again.
- Wash with soap and water and then rinse with a mild disinfectant. Water in which Jik or ordinary bleach has been added can be used as disinfectant.
- For large farms a shower area with high pressure sprayer for pigs should be provided.
A serious pig farmer should have a sow calendar in place to assist him to
- Plan the daily activities in the pig unit
- Plan and control the no. of services
NOTE: The Weinholt's sow calendar is the most common
Signs of farrowing
- Udder enlargement during the last 2 days.
- The udder will start to look much redder.
- A white or clear fluid can now be extracted from some of the teats.
- The sow will be livelier, alert, and restless and she may start to bite.
- She scrapes the floor with her forefeet and sweeps the straw bedding into a corner with her snout to make a nest.
- In group housing the sow may fight other sows.
- Just before delivery, the udder will swell and the sow will calm down.
- Before the first piglet is born a bloodstained fluid comes out of the vagina. In gilts the fluid may be released earlier.
- The sow will usually farrow during the night or evening.
Feeding before farrowing
Reduce the feed given to the sow by one third in the last 3 days. Give maize bran if available to act as a laxative. A laxative encourages bowel movement. On the day of farrowing the sow should not be given her normal food but only laxative food (green leafy material, or maize bran for example) to prevent constipation. Should the dung be too hard; some Epsom salt should be given.
Birth of piglets
The duration of farrowing may last 1-2 hours and could go up 12 hours. A few piglets are born in a short interval after which there is a longer interval. If this interval lasts more than 1-2 hours or the total birth lasts more than 5 hours, then it is considered abnormal.Piglets are born head first. A piglet usually appears every 15 to 20 minutes. Very small piglets may be born very quickly, one after another. During the birth the piglets are still enclosed in a membrane which will usually break open as they are born. It is quite common that piglets are still attached to the umbilical cord when they are born. This cord can be left, as it usually soon breaks off on its own. 30 minutes or an hour after the birth of the last piglet the sow pushes out the afterbirth. The sow may suck blood from the afterbirth to build up her strength.
There are times when a piglet may be still born (born dead). Older sows have a higher tendency to have still-born piglets. Although there are normally very few complications at birth it is advisable for someone to be present.
Problems related to the birth
Difficulties during birth
Although there are normally very few complications at birth it is advisable that someone be present. If the whole process of delivery takes longer than 8 to 12 hours then there is something wrong. The birth membrane may suffocate the piglet if they are not taken out. This may happen in particular to the last piglets.
Crushing of piglets Sows do not pay much attention to their offspring until all the litter has been delivered. Piglets that waste no time in searching for milk may easily be crushed if the sow lies down again in the course of the farrowing. A sow will not always accept human company whilst she is farrowing. Remain at a discreet distance and be ready to intervene if it appears really necessary.
Slow Delivery
If the sow seems to be taking a long time before the birth of the first piglet it usually means that the piglet is stuck in the birth canal and may have to be helped out by hand. For this the utmost hygiene is essential.
The sow's rear end should be thoroughly cleaned and even disinfected.
The hands of the person helping the piglet to come out should also be cleaned and disinfected. The helping person should then put a lot of vegetable cooking oil or Vaseline on the hand and the vagina to make both the hand and the vagina slippery. Do not use soap.
The prepared hand should then be worked slowly into the vagina with a forward and sideways turning or gentle rotating movement.
Simply by doing this it is possible that the sow will start her contractions and push the piglet out.
The sow can be injected with 2 cc of Oxytocin (not more). If this has no effect after an hour the piglet will have to be released manually, preferably by someone with a small hand which is clean and using cooking oil or Vaseline. If still no progress is made, give another injection. If the piglet is really too big a caesarean operation will have to be done where the womb of the sow is cut open to release the piglets. If there is no veterinarian who can be called easily and quickly, the sow will have to be slaughtered. It is very important to try to prepare for any problems which are expected before this happen.
Weak piglets
Some piglets may be born with weak breathing or may even appear dead. Piglets that have difficulty in breathing can be helped by holding their hind legs up in the air. By pressing their chest in and out their breathing can be stimulated. Pouring a little cold water over the head and chest can help, but the piglet should be dried off immediately afterwards.
Piglets born prematurely
Piglets that are born premature (at 110 days or earlier) have parchment-like skin, which is often very red with no hair or only very short bristles. They may have badly shaped claws, screwed up eyes and difficulty in breathing. They wander around the pen trying to find the udder. Most of them will not survive.
Accidental killing of the piglets by the sow
It is quite normal for sows to eat the afterbirth and any still-born piglets. Some people claim that it is by eating the afterbirth that the mother is encouraged to start on her piglets too. Some sows, especially young gilts, can be aggressive towards their litters. The reason for this is not clear. During farrowing, an inexperienced mother may become frightened by the new-born piglets. She may try to avoid them and start biting. One way of avoiding violent mothers is to choose or select young breeding gilts whose mother and grandmother weaned all their piglets every time they gave birth.
Protecting piglets from being killed by their mother
If the piglets are in danger of being killed by their mother they should be put in a box or covered creep area and kept warm (possibly with a heating lamp). A clean cloth or litter should be put in the box or on the floor to make the piglets comfortable. The mother will usually quieten down. A tranquillizer (or sedative) such as 'Stresnil' (2 mg/kg) can be injected if she does not calm down.
The sow becomes ill after farrowing
The most common problems affecting sows after farrowing are inflammation of the uterus (metritis) or of the udder (mastitis). The sow appears dazed, refuses to get up and to eat, and is feverish. The main causes of these problems are lack of proper hygiene and care of the sow and the pen, before, during and after farrowing. Poor health management allows organisms that cause diseases to enter the uterus or udder. Constipation and uterine prolapse are also some of conditions that may arise. Treatment and prevention of these conditions are discussed under common pig diseases.
Piglet management
Care of the newborn piglets
![]() |
| The navel of a piglet being dipped in iodine solution |
| © S. Gikonyo, Kenya |
![]() |
| Newly born piglets being assisted to suckle |
| © S. Gikonyo, Kenya |
![]() |
| A sow with her two-day-old litter of piglets resting after suckling |
| © S. Gikonyo, Kenya |
The piglets can be given additional feed of goat or cow's milk, or a mashed bean porridge to which a little sugar has been added. If the milk produced by the sow is too little to meet the needs of the piglets, or the sow completely neglects the piglets, they should be put on another sow or reared on cow or goat's milk.
Feeding piglets whose mother does not produce enough milk
If the sow does not produce enough milk the piglets should be given to another sow which farrowed or gave birth up to three days before. This sow should have fewer piglets than the number of teats on her udder. This is because the teats which are not being used by piglets dry off after three days. Piglets normally take control of one teat at birth and continue to feed from it until they are weaned. Transfer extra piglets to the sow with less piglets after disguising them with a spray which has a strong smell e.g. engine oil/kerol diluted with water to last at least 1 or 2 days.
All piglets should be sprayed as soon as introduction is done so that the foster mother doesn't recognize its own as foreigners. If there is no sow to take over feeding the piglets, they will have to be given extra food by hand. Goat or cow's milk can be given to the piglets in the same way as for motherless or orphaned piglets.
Anaemia or Iron deficiency
Anaemia is caused by iron deficiency. This iron is needed for the formation of haemoglobin. This is an important problem, especially for young piglets kept indoors. At birth the piglets have about 50mg of iron in their body. They receive additional 1-2 mg/day from milk while they need 7mg during the first week. It is obvious that the quantity of iron decreases rapidly and, if not supplemented the piglets become very pale a few weeks after birth and their growth slows down.
![]() |
| Iron injection solution |
| © S. Gikonyo, Kenya |
- Giving the piglet (0-3 days after birth) iron injection 1cc intra-muscular, preferably at neck muscles, of 200mg/cc iron dextran or 2cc for 100mg concentration
- Oral iron- paste containing iron is put in the mouth within 24 hours of birth
- Wood ash can also be put into the pen. This will not provide iron, but it does contain other important minerals.
Heating for Piglets
In cold weather, a small area can be heated with an infrared lamp. This keeps the young pigs warm. It helps prevent pneumonia and crushing as the piglets tend to stay under the lamp when not feeding.
![]() |
| Piglets in creep area warmed by an infra red bulb |
| © S. Gikonyo, Kenya |
Young piglets from 7 days onwards should have high protein feed available to them. This has to be fed in a small area where the mother cannot eat the feed. The feed conversion rate of young piglets is very high and thus creep feeding is particularly economic. Creep feeding helps the piglets to get used to feeding at an early age.
NB: The sow's milk yield also begins to decrease just as the growing piglets require feed.
Rearing motherless piglets
It is very important that newly-born piglets receive colostrum straight after birth to build up their natural resistance. Colostrum is the first milk that the sow produces after farrowing. If the sow dies whilst farrowing, the colostrum will have to be taken from another farrowing sow for the piglets. If they get no colostrum, their chance of survival is very small.
Cow's or goat's milk can be given to the piglets. This is after the piglets have taken colostrum. The milk should not be diluted, as sow's milk is very concentrated. It should be warmed up to slightly above body temperature (37° - 40°C) in a pan lowered into a larger pan containing boiling water.
Feeding programme
For the first two days the piglets should be fed at regular intervals 5 times a day, for about 10 minutes each time. On the third and on the fourth day they should be fed four times a day, and after that 3 times a day. After 14 days, increase the quantity of milk at each feed, but gradually decrease the number of feeds per day. Gradually change over to more solid feed, so that by the age of about three weeks they should be able to take regular feed. If no nutritious feed is available they should continue on milk for a while longer. The weaker ones can be fed four times a day for a longer time. The figures in the table are maximum quantities - it is better to give too little rather than too much feed. There should be a continuous supply of water, which should be boiled to avoid any contamination.Feeding programme for orphan piglets
| Day | No. of feeding times | Quantity each time (ml) |
| 1 | 5 | 30 |
| 2 | 5 | 40-45 |
| 3 | 4 | 60 |
| 4 | 4 | 70 |
| 5-7 | 3 | 80-100 |
| 8-9 | 3 | 120 |
| 10-11 | 3 | 140 |
| 12-14 | 3 | 160 |
As soon as possible, the orphan piglets should move onto regular food. This should be of good quality, protein-rich, and easily digestible. Note-despite the amount of care they receive, hand-reared piglets will never grow as fast as those reared by a mother sow.
Castration
Male piglets are castrated to prevent their meat from boar taint. Castration also makes them more manageable when they become sexually mature. Castration must be done by a professional expert.
Castration should be done in the first two weeks of a piglet's life. The animals should be fit and healthy. If this is not the case it is better to postpone the operation. Weaning piglets
The piglets should already have started getting used to eating from a trough alongside their mother, and now they should just continue doing so. They will need protein-rich feed as they will be growing fast. There should also be plenty of clean water for the piglets to drink. It is important for the piglets to learn to drink water early in preparation for weaning.Weaning age
Somewhere during the first 2 months after birth, the mother should be separated from the piglets in order to stop the suckling period.
Early weaning gives more piglets per sow per year (higher litter index). Early weaning however may increase fertility problems (smaller litters) thus necessitating early culling. Good housing, good creep feeding and high levels of piglet care must be observed.
Under very good conditions wean at 3 to 4 weeks . Under poor conditions (back yard, local breeds, no concentrate) piglets can be weaned at 2 to 3 months Earlier weaned piglets are hardier during fattening than those weaned late. Piglets should be weaned when at least 6kgs.
Steps taken at weaning
Sow
- Determine whether the sow is to be culled or served again
- On the day of weaning don't feed the sow, in the days following farrowing flush the sow until serving (flush for max of 10 days)
- Move the sow to another pen (near a boar)
- Sometimes vitamin/mineral is given just after weaning
Piglets
- Give piglets identification (tagging, notching, tattooing).
- Weigh the piglets to judge their average weight gain and uniformity
- Feed piglets with care to prevent digestive problems after weaning. The type of feed should not be changed during and just after weaning
- Weaning (3-5 wks) do not feed more than 100-200g/piglet/day during 1st 4 days
- Weaning (6-7 wks) start by feeding about 50% of the ration piglets receive during the last few days of suckling, then increase gradually.
- Check health of the piglets carefully (especially first 4-12 days after weaning).
- Prevent stress, pay attention to hygiene and climate of the pen.
Problems at weaning
-
Post weaning diarrhoea common after weaning
Symptoms: Piglets may have a rough coat, depressed appetite, sometimes diarrhoea, swelling around the eyes, hoarse squeaky voice, and sudden death
Prevention
- Reduce feed after weaning
- Make no sudden feed changes
- Include crude fibre (bran) in the feed
- Prevent stress
- Use of medicated feed/water (prophylaxis)
Reduce amount of feed or do not feed at all for 1-2 days, give some bran or skim milk powder in the ration, antibiotics can be mixed with feed/ water. -
White diarrhoea
This disease affects piglet of 2-4 weeks old. E. coli bacteria and factors like first creep feed or changes in sow milk are the major causes.
Symptoms: faeces become more liquid, piglets become pale. Lasts 2-5 days
Prevention:- Good feeding of the sow
- Hygiene
- Fresh and clean drinking water
- Prevent anaemia and stress
- Feeding of piglets as from 7 days after farrowing.
Housing
Types of housing
![]() |
| Free-range pig keeping |
| © S. Gikonyo, Kenya |
![]() |
| Improved free-range system |
| © S. Gikonyo, Kenya |
- Semi-intensive: Pigs are kept in houses confined to a limited space. Feed mainly fresh water and fodder have to be brought to the pigs. A roof is provided, the walls commonly made of timber off cuts or old iron sheets.
- Intensive pig keeping: Pigs are kept in complete confinement; fatteners, boars and sows with their litters in separate units. Management is usually high and higher numbers of pigs are reared.
![]() |
| Semi intensive system |
| © S. Gikonyo, Kenya |
![]() |
| Intensive pig keeping system |
| © S. Gikonyo, Kenya |
Advantages of keeping pigs inside a house and yard
- The animals spend their energy putting on body weight rather than on looking for food and shelter.
- The number of piglets surviving will increase if they are born in secure and healthy surroundings.
- Controlling the health of the pigs is easier if they are housed, since it is easier to maintain good hygiene.
- Feeding routines can be more carefully controlled.
- Manure can easily be collected and used for fertilizing land.
- Protection from climate extremes
- Protection against theft
The following are basic requirements that a pig house should meet to ensure increased productivity and profitability of a pig enterprise:
- House should be warm and free from draughts
- Floor should be kept dry and not too smooth to avoid pigs from falling and therefore being unable to move in the pen freely
- The floor should be cemented since pigs have the tendency to dig into the ground thus making it difficult to clean and increasing the rate of parasitic infestation to pigs.
- The house should have dunging area at the rear and feed trough and water trough in front. It should have a slope to allow free drainage.
- The pens should not be near the dwelling houses because of smells and flies.
- Cheap, readily available and durable materials should be used for house construction to reduce cost. The house however should have all the essential parts.
- To minimize transfer of disease animals of the same age should be housed as close as possible next to each other and the wind flow should be from the direction of the youngest to the older animals.
Location of the Pig House
- A pig house should be sited away from walls of other buildings to allow air circulation and where possible about 100m away from the residential house.
- The area should be well drained.
- The building should face east - west to avoid direct sun rays.
- The pig house should be located such that the wind flow is away from the residential premises.
In hot climates buildings should be of the open type (half walls) which facilitates surveillance, promotes excellent ventilation and are inexpensive. It is difficult to control heat stress in fully enclosed buildings in the tropics.
There are a number of designs according to their use:
1. Farms considering only weaner pig production
2. Farms concerned only with fattening bought-in pigs
3. Farms with both breeding and fattening enterprises
4. Farms with breeding operations and fattening facilities for only some of the animals
The decision as to which option to follow is based on the general organization of the local pig industry.
Recommended Materials
Floors. Floors must be impermeable, and easily cleaned with a shovel and brush as well as with pressure washers. This allows eggs of parasites to be removed and prevents spread of infection. Floors of hardened soil (murram) are not appropriate because pigs grub the soil. Special care should be taken to make the surface of floors non-slippery where concrete floors are made. Wooden floors are warm but have specific problems such as decay, insect attack and chewing by pigs. Hardwood must therefore be used, making them very expensive. Concrete floors are tough and long lasting if well made; easy to clean and reasonably priced. They are also cool, which is beneficial in hot climates.
Floors need to have a sufficient slope of about 3% or slightly steeper which allows adequate drainage.![]() |
| Piglets on saw dust bedding |
| © S. Gikonyo, Kenya |
NB. The mixture of bedding with dung and urine makes an excellent fertiliser for the fields, and is especially valuable if converted into compost.
Walls. Walls should be erected over a foundation of sufficient strength. They can be constructed of brick, stone, mud or bamboo or any other material suitable for the locality and climate. Stone or brick walls are costly but durable and hygienic. Bamboo and mud walls are economical and useful but are temporary and hard to keep hygienic. Walls supporting the roof and wall partitions with which the pigs come in direct contact must be strong and materials such as brick, stone, or cement concrete may be best at least for the lower parts of the walls.
Vertical barriers. Partitions within piggeries (90cm, except for boars, which should be 110cm), which allow different categories of animal to be separated, should be provided with gaps to allow good circulation of air at pig height. In order to prevent pigs from escaping, spaces between planks must be small at the bottom.
In order to avoid damage from pushing, posts must be solid and planks nailed from inside. Partitions of reinforced concrete 10cm thick are also possible but these are more expensive. These solid partitions should be limited to transverse sections separating different areas of the building but should not be for longitudinal partitions as this would limit air flow at ground level.
For the outer wall special wire netting or gates are used effectively. For the inner walls, if the piggery is two-rowed, a system of rails or flexible wire above the trough is preferable. This allows pigs in pens opposite to see each other. Older gilts and dry sows come on heat faster when they see the boar.
Gates. These should consist of 200mm planks, built with reinforcement in the shape of a 'Z' on the inside. A width of 60cm is sufficient even for the biggest animals. They should be attached with particularly strong fittings to withstand pigs rubbing against them. The latches should be of the locking type that is not opened if the door is shaken. A latch is moved much more easily than a bolt.
Roofs. The roof should be light, strong, durable, weather-proof, a bad conductor of heat and free from tendencies to condense moisture inside. They must ensure maximum shade and should extend down almost to ground level to reduce penetration of oblique sun rays and entry of rain when blown by the wind. Roofs can be made of thatch, aluminum, galvanized iron, tiles, wood or bamboo. Thatch, bamboo and galvanised iron roofs are the most recommended. Recycled sheets certainly are still of use for makeshift piggeries.
![]() |
| Dry feeder |
| © S. Gikonyo, Kenya |
Feeding troughs must be easily cleaned, even if pigs themselves do this to an extent. The internal surface must be smooth and without sharp angles. The depth must be sufficient (20cm) such that the food only occupies the bottom and cannot be flicked out.
Finally, they should not be used as a wallow: pigs have the habit of lying in feed troughs. Therefore, subdividing the trough transversely with metal rods (10mm preferably) every 40cm, if it is to be used by many animals, is recommended. This has the advantage of allocating places from the moment of feeding.
The trough may be wooden and fixed to walls with removable bolts. However, if it is to be used by more than two animals it must be replaced by one made from cement, which meets all necessary requirements. It should be placed along the service wall to aid distribution of food. Cement troughs should have a round hole in the bottom with a bung placed from the outside; this will allow them to be cleaned with water.
If a basal diet is fed ad libitum, this may be offered effectively from wooden hoppers which may contain maize, dry cassava chips, etc. This ensures that animals do not go without food, and makes distribution easier. These hoppers may be made readily from wood. There are advantages in surrounding the bottom corners of the base with iron to prevent its rapid decay.
The animals must be able to reach the feed easily. The feed level must be kept as low as possible to avoid feed wastage.
Watering
![]() |
| A water section in between two feeding sections in a concrete trough |
| © S. Gikonyo, Kenya |
For large piggeries where a running water supply is available, automatic drinkers should be used. Water within bowl/drinkers is soiled regularly and pigs themselves often compound the situation. Nipple or valve drinkers are preferable. These are placed at a height of 60cm with an additional step of 30cm placed beneath them if they are to be used by piglets. These drinkers have several advantages; the water drunk is always clean; spillage is minimized and costs are reduced. Their use is governed to an extent, however, by stability of water pressure. Their control is not standard and becomes impossible under situations where pressure is subject to wide variations. However, low pressure can be maintained by using a reducing valve or a water storage tank.
![]() |
| Automatic drinking nipple |
| © S. Gikonyo, Kenya |
Space Requirements:
| Sows | Fatteners | Weaners | Boar | |
| Trough Length | 40cm | 35 | 20 | - |
| Floor Space | 1.2m2 | 1m2 | 0.5m2 | 2.5 x 3 |
| Dung area (length) | 1-1.5m | - | - | - |
Lactating sows will require a creep area (1 square metre) or special pens fitted with guardrails /hurdles or supplied with a farrowing crate.
![]() |
| Sow in a farrowing crate |
| © S. Gikonyo, Kenya |
- 3 dry sows
- 8 fatteners
- 1 boar
- 8 - 12 weaners
- The above dimensions might need adjustments to meet local conditions e.g. for hot areas enlarge the area by 10%.
- Provide wood shaving in the nest especially in the first week
- Creep area must have an area of at least 1square metre
- Lying space behind the trough must be at least 2m long and dung area up to 1.5 square metres
- The lowest bar of the rails in the farrowing area must be 23cm above the floor
- Trough depth 20cm
Special Housing Requirements Pens for Sows with Piglets
Special accommodation for the sow with piglets is essential to avoid high mortality among the piglets. Separate areas for both the sow and piglets are necessary. Not all sows are naturally attentive (good mothers), so special management is needed to avoid crushing of piglets.
![]() |
| Guard rails at 23cm from floor and 75cm from the walls |
| © S. Gikonyo, Kenya |
Constructing a creep for the piglets
You may provide the piglets with a special safe place called a 'creep area' in the sow's pen where the piglets can creep in for warmth and safety.
The sow's pen can be divided into two parts, the bigger area for the sow and the smaller area (1 square metre) for the piglets. The opening to the creep area should be small enough to only allow piglets inside.
A heating lamp or charcoal burner raised on a firmly placed block should be put in the creep area to provide extra warmth. In very cold weather, the creep area can also be covered with empty grain bags in order to trap heat inside the creep area. The piglets will need the extra heat until they are 2-3 weeks old in the hot months of October and November or until they are 4 weeks old in the cold months of June and July. When the piglets are cold they will tend to bundle together. The piglets nearly always prefer the protective 'creep' rather than lying against the sow.
The creep area can be used for introduction of a little feed for the piglets as early as the 7th day of age. This helps the piglets to get used to eating other feed in readiness for the time of weaning.
(see figure 16 Piglets in creep area warmed by an infra red bulb)![]() |
| Farrowing/rearing pen with sow confined |
| © S. Gikonyo, Kenya |
A combination of a farrowing and rearing pen, the sow is confined in the sow area (0.7 x 2.5 metres) leaving two creep areas on either side (0.8x2.5 metres). A run of 1.5 metres is provided at the back.
![]() |
| Modern farrowing / rearing pen |
| © S. Gikonyo, Kenya |
Modern farrowing rearing pens are also available but cost is prohibitive. The sow is confined in a space of 65cm by the two sets of hurdles. A creep area in front (50 cm by 80 cm) is provided with heating source to provide warmth to the piglets. The floor is made up of plastic slates for easy manure handling.
The pens should meet the following conditions
- Both sow and piglets must have a comfortable lying area (avail litter).
- Maintaining good hygiene.
- Piglets must be able to reach the sow's udder easily
- Making the pen adjustable is an advantage (young or older sows can be accommodated easily).
Housing of Dry Sows/Pregnant Sows
Dry and pregnant sows can be housed in different ways. The choice can be group housing or individual housing. For group housing, a maximum of 3-4 sows should be kept in each pen of 9-10 suare metres. ![]() |
| Sows in group housing |
| © S. Gikonyo, Kenya |
At weaning, sows have to be moved from the farrowing pen to another pen (preferably another compartment or building). To stimulate them to coming on heat, sow contact with the boar is essential. This could be achieved by keeping the sow in a pen next to the boars' pen. Where land is available, sows can also be kept partly or completely out doors. Sows kept in paddocks should be rotated regularly to avoid parasite problems and to keep the pasture in good shape.
Housing of Weaners
At weaning, the sow should always be taken away from piglets. The weaner after a period can be taken to another pen. Weaners of the same age can be kept together. Pens for weaners can be simple as long as a lot of attention is given to hygienic condition to avoid scour and worm infestation.
Housing of Boars
The basic requirements for environmental comfort of boars and sows are similar. It has been observed that excessively high temperatures affect the fertility of the boar's semen. Thus care should be taken to ensure that the boar is not subjected to extreme hot or cold conditions. A minimum area of 2.50 x 3.00 square metres is required. When a boar has a mate, the pen area should be 8 - 9 square metres. A separate area can be created (4.00 x 4.00 square metres) where the service can take place. The pen or service area must be kept dry and free from obstacles. Gilts
Gilts from three months till service (8 months) can be kept in pens which are similar to fattener pens. Afterwards they should be kept in a different pen with a different floor space. It is important to have enough spaces available for gilts. 8-10 gilts should be kept in one pen of 3 x 3m.Housing of Fatteners
![]() |
| Housing of fatteners |
| © S. Gikonyo, Kenya |
- Construction which reduces labour requirement
- Construction which increases efficiency in operation
- Construction which gives good comfort to the pigs, increased feed conversion efficiency (FCR) and hence increase growth rate.
NOTE:
- A limited number of fatteners per pen has a positive effect on the productivity (high ADG)
- Not more than 8-12 fatteners should be kept in a single pen (3 x 3 m).
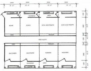
Layout of the piggery
![]() |
The layout of the building should be arranged to reduce traveling distances to a minimum. Pens should be positioned as in a piggery with only one row and opposite each other with feeders facing each other. The central passage should be 1.5m wide to allow wheelbarrows and feed trolleys/wagons to pass. It should not be too wide otherwise, the cost of covering the area will be high.
Stores must be situated in such a way that feed trolleys/ wheel barrows have good access to passages and that walking lines are as short as possible.
Pig House Construction Planning
Before building a pig house, one must know the number of places or pens needed for lactating sows, dry and pregnant sows, replacement stock, boars and fatteners.
These places can only be calculated after a farmer has decided about the following starting points:![]() |
| Construction plan for small scale sow unit |
| © S. Gikonyo, Kenya |
- The number of sows on the farm.
- The expected farrowings per sow per year (litter index).
- The weaning age.
- What kind of weaner pens the farmer want to use.
- Whether the farmer wants to use artificial insemination or natural mating.
- Whether he selects his own young breeding stock or wants to buy them from outside and at what age.
- What type of housing for dry and pregnant sows (group or individual).
- The expected culling rate.
- The expected growth of the piglets.
- Days needed for disinfections and cleaning.
- The expected growth for the fatteners.
- The number of animals per pen.
Formulas to Calculate the Number of Places or Pens
The number of places or pens can be calculated as follows:
Farrowing rearing pens:
![]() |
Weaner pens
![]() |
Places for dry and pregnant sows
![]() |
Places for replacement stock
![]() |
Number of pens for boars
A teaser boar is necessary when A.I. is used. When natural service is used, one boar for every 15 sows must be considered.
Place for fatteners (closed farm)
![]() |
Examples
On the example farm with 50 sows:Piglets are weaned at 7 weeks and moved to the weaner pens 5 weeks later weighing 20 kg and housed 8 per pen, 3 days of cleaning weaner pens.
The sows are kept in groups of 5.
Litter index 1.7, while for the occupation days one week is taken for acclimatization the sow before farrowing and 3 days for cleaning and disinfections.
Number of farrowing rearing pens
![]() |
Weaner places
![]() |
Number of places for dry and pregnant sows
The number of days from weaning to service is 6 (fixed). After calculation we arrive at 45 lost days.
![]() |
Places for gilts
The culling percentage is 40% and only 2 from the 3 gilts selected at an age of 3 months will come in production. The gilts stay in the group gilt-pen till service.
![]() |
Places for fatteners
The expected daily gain is 500 grams and the growing period is from 23 kg till 93 kg live weight. First the number of rounds has to be calculated: growth (93 - 23kg) is 70kg. Daily gain 500gram so it takes 70 / 0.5 = 140 days to grow to slaughter. An allowance of 10% has to be added (slow growers, extra occupation and cleaning) 140 + 10% total occupation days. This means 365 / 154 = 2.37 rounds per year.
Places needed
![]() |
| Category | No of places | No. of pens |
| Rearing sows | 15 | 15 |
| Weaners | 73 | 10 |
| Dry and pregnant sows | 37 | 8 |
| Gilts( Replacement) | 13 | 4 |
| Boars | 4 | 4 |
| Fatteners | 256 | 32 |
Feeding pigs
Pigs are known to eat a wide range of feeds available at farm level including kitchen swill and green farm by-products. However their growth performance will depend on the feed quality. Pigs must therefore be fed the correct quantity of the right feed mixture. The nutrient requirements, especially digestible energy and protein, of the various production classes differ. These production classes include:
- boars and pregnant sows
- sows with piglets (lactating sows)
- young pigs, three to 10 weeks old
- growing pigs up to slaughter at a live weight of 60 or 110 kg.
Feed sources
Feed mixtures can either be bought or the farmer can mix them himself. The latter is less expensive but it is important to consult an expert on how to mix the feedstuffs that have to be included in the mixtures for each of the production classes. The various feedstuffs must be weighed off correctly before mixing. Feed mixtures for each of the pig classes must contain the right quantities of the following nutrients, namely:
- digestible energy (DE)
- proteins
- minerals
- vitamins.
Grains
Grain constitutes between 55 and 70% of the total feed mixture.
The grain in a mixture provides mainly energy (between 60 and 80% of the total DE in the mixture) it also contributes substantially (30 to 60%) to the protein content of the mixture.
Grain by-products.
Grain by-products such as wheat bran, maize bran, maize leaves, maize-stalks and maize-cobs are used to dilute the DE content of the mixture. Brans have a protein content higher than that of grains and are also relatively inexpensive.
Cane molasses
Has been recommended as an additive to improve the palatability of dry rations, and particularly in cane-producing countries, as an addition to concentrate or swill-based rations at levels up to approximately 30 percent. Higher levels have generally not been recommended due to difficulties in handling and mixing; loose faeces associated with diarrhoea; dirtier animals and floor pens, and most importantly, an increasingly inferior feed conversion as higher levels of molasses were used.Plant protein sources
-
Oilcake meals
Soya-bean oilcake meal and sunflower oilcake meal are plant protein feedstuffs usually included in pig feed mixtures. Soya-bean oilcake is of a higher and better quality protein and contains considerably less fibre than sunflower oilcake. -
Full-fat oilseeds
Full-fat soya-bean and sunflower seed meals have a high oil content. The oil results in soft fat in pig carcasses. Therefore, the inclusion of these two feedstuffs, if fed in combination with maize, must be limited in rations for finishing pigs. -
Lucerne
Lucerne is also used. It has a high fibre and low DE content. Therefore, the inclusion of lucerne in feed mixtures for pigs must be limited.
Animal protein sources
- By-products of the animal and fishing industry can be used as animal protein sources for pigs.
- Fishmeal -Fishmeal is the most frequently used and best protein source to include in feed mixtures. It also has a high DE content.
- Blood and carcass meal - Bloodmeal has a very high nutritional value. Do not, however, use more than a maximum of 5% in feed mixtures because it is unpalatable. It becomes burnt easily during processing, which has a detrimental effect on the quality of the proteins.
Calcium and phosphorus sources
Feed lime is a good calcium source and is not very expensive, but it contains no phosphate. Monocalcium phosphate, dicalciumphosphate and bonemeal are usually included as sources of phosphate. These sources also contain calcium, but in smaller quantities than feed lime. Waste products in pig feed mixtures
The utilization of kitchen wastes from institutions such as hospitals, schools or hotels, and the use of brewery wastes, processing, slaughter wastes and agricultural residues, if used to feed pigs, would help to reduce feed costs and also reduce environmental pollution. Organic wastes are subject to rapid deterioration and contamination by micro organisms, some of which are extremely pathogenic Waste products must therefore be used with great caution in pig rations. Even hard objects such as pieces of broken glass, which can injure the pigs, are sometimes found in waste products. However, it has been shown that by ensiling, or by thermal treatment (swill should be boiled for 30 minutes and cooled before feeding.), preferably complete sterilization, organic wastes can be completely decontaminated and safely used as alternative feedstuffs.These products are usually high in moisture (water) content and therefore have a very low nutritional value when fed in a wet form.
- Only use waste products in an air-dry form.
- Use a flat cemented area in the sun for drying the waste.
- Remove any undesirable material from the waste when it is spread out on the cemented area.
- After drying, grind the waste in a hammer mill. The milled meal can then be used to replace part of the ingredients when mixing pig rations.
The nutritive value of kitchen waste
Before using the waste-product meal it is advisable to have it analysed for protein, fat, fibre, calcium and phosphate content by an analytical laboratory. Thereafter it is important to get the advice of a pig nutritionist on how much of the dried waste meal must be included in a pig ration.
Analysis of these wastes indicate that the nutritive value for pigs is adequate with respect to protein and energy, however, its low dry matter content tends to affect growth due to a reduction in total dry matter intake, principally in younger animals, fed ad libitum (González et al., 1984).
The digestibility of the nutrients is variable and somewhat related to the source. Kornegay et al. (1970) in reviewing the performance of pigs fed heat-treated garbage residue from different sources concluded that it should be supplemented with a 15 to 18% crude protein concentrate in order to improve the daily live weight gain (to more than 600 g/day) and feed efficiency. No marked difference in carcass quality was observed when garbage residues were fed to pigs.
Nutritional requirements
For good production a pig should be supplied with the nutrients it demands for a particular form of production. This means that an animal should consume what it requires for its production.
Nutritional requirements of animals are determined by means of research and summarized in tables, booklets etc. Many countries have manuals of feeding standards. The art/experience of the farmer in the finer adjustments of feed intake to meet the performance of the animal is also important. There are a number of essentials that must be provided through the feed to the pigs. These include fibre, energy, protein, minerals and vitamins.Pig feed requirement
| Creep | Sow and weaner | Fattener starter | Grower finisher | Lactating Sow feed | |
| Lys (min)% | 1.25 | 0.6 | 0.95 | 0.75 | 0.6 |
| DE Kcal /kg | 3350 | 3050 | 3300 | 3200 | 3200 |
| % DCP (min) | 16 | 15 | 14 | 13 | 13 |
| M+C (min)% | 0.7 | 0.35 | 0.55 | 0.45 | 0.45 |
| EE (max)% | 7 | 7 | 6 | 7 | 7 |
| CF (max)% | 4 | 6 | 5 | 6 | 8 |
| Ca (min-max)% | 0.8-1.0 | 0.8- 1.0 | 0.7-0.85 | 0.6 - 0.75 | 0.9 - 1.1 |
| P (min)% | 0.75 | 0.7 | 0.6 | 0.5 | 0.6 |
Making Rations
A ration refers to feed. It is a combination of different feedstuffs (ingredients) indicating how much of each feed stuff has been used and the nutritive value it is contributing.
A complete ration therefore contains all the nutrients needed in proper proportions. The quality of a ration will depend thus on the quality of the feedstuffs used.In any ration every feedstuff used makes up a certain % of the mixture. The total mixture will add up to 100%. What determines the contribution of nutrients by a certain feedstuff in a ration is its percentage inclusion and concentration of the nutrients.
Farmer ration
Own farm rations can help to reduce the cost of feeding the pigs considerably, however feed mixing must be done thoroughly and analysis of samples may become necessary from time to time. Comfrey and Velvet Beans can be used to supplement purchased feed as follows:
- Comfrey 20%
Velvet bean 20%
Cereals 60%
Preconditioning velvet beans - Soak the beans in cold water and leave it overnight
- Clean the beans in clean water the following day
- Boil the beans for 1 hour
- Rinse in cold water
- Dry in the sun
- Pound in mortar or grinding mill
- Mix 25% velvet bean powder with 75% cereal. Alternatively prepare feed as follows:
- Commercial pig feed 20%
Grown Fodder/ swill 80%
This reduces up to 20% of feed costs.
Other Alternative Feed Resources to Assist to Reduce Feed Cost
Pigs are non ruminants, hence cannot extract a lot of nutrients from fibrous materials. Feeds with high cellulose content should thus be minimized in pigs diet. When feeding these alternative feeds, commercially compounded feeds should always form the bulk of the pigs' ration.![]() |
| Sweet potato crop, vine and tubers can be used as pig feed |
| © S. Gikonyo, Kenya |
Vines and tubers are quite palatable to the pigs. These do not require any cooking and can be chopped, sun-dried, and used as an energy source for pigs. The performance of pigs fed on dried sweet potato chips, although inferior to pigs fed on maize, offers an additional and interesting option for feeding pigs in the tropics. Fresh vines can be used to replace 10% of total dry matter, (Mora et al., 1991) found that performance of 6 to 12 kg weaners tended to improve, both from the point of view of average daily gain (186 vs. 202 g/day) and feed conversion (2.80 vs. 2.50).
Lucerne
Lucerne is high in protein, minerals trace elements and vitamins. Pigs readily eat it in green form; it can also be dried and ground to be included in the pigs ration. However, due to the amount of cellulose most of it will be wasted in the digestive tract.
Fodder beet and edible canna
Fodder beets are readily eaten by pigs when chopped and do not require any cooking. Both tuber and tops of edible canna can be fed.
Kales
Pigs readily eat them and due not require any cooking
Russian comfrey
Both the tubers and tops are readily eaten by the pigs. The leaves are richer in crude protein than the potato vines. The leaves can be dried and included in the pigs ration.
Giant Amaranths (terere)
It is a good source of calcium and iron. The plant is very easy to grow but difficult to eradicate.
Note: Fodder crops and swill can replace half of the compounded feeds. About 6 kg of fodder/swill can replace one and half kg of compounded feeds. For Lucerne due to its high protein content it can be fed to dry sows on alternative days. At no time however should the fodder crops constitute more than 50% of the pigs ration. Even if the farmer intended to replace all is compounded feeds with fodder crops, this is not feasible since a pig will not be able to finish fodder equivalent in kg to daily ration of compounded feeds.
Daily Feed Requirements
-
Dry/pregnant Sows and Gilts:
Dry sows and gilts give 2.5/kg day of sow and weaner meal
Give extra 1kg/day one week before serving gilts and sows and one week after service.
Give lactating sows 2.5 kg/day of sow and weaner meal for maintenance and 0.25 kg/day extra for each piglet being suckled. -
Boars
Give boars 2.0-2.5 kg/day of pig sow and weaner. If the boar is regularly used give it 2.5 Kg. -
Piglets
Give creep pellets i.e. 0.5 - 1.00 kg/day from day 7 up to weaning time per piglet
The feed should be mixed with sow and weaner meal the last one week before weaning. -
Feeding of Growing and Finishing pigs
- Pigs weaned at 3 - 5 weeks of 11 - 13 kg body weight should continue being fed on the starter diet until they reach 18 kg live weight. Pigs weaned at 7 weeks or older may be switched gradually to sow and weaner diet.
- For growing or finishing pigs all ration changes should be made gradually. If this is not possible the feeding level of the new diet should be low until the pigs become accustomed to it.
- Where post-weaning scours are a major problem, restricted feeding during the fist week after weaning may reduce the incidents of scours.
- For treatment in case of an outbreak of scouring, medication through drinking water is preferable since sick pigs go off feed.
Feeding rates by age and expected weight:
| Age (wks) | Weight (kg) | Feed/day (kg) | Feed type |
| 8-10 | 12-15 | 0.66 | Sow and weaner/starter |
| 10-12 | 15-20 | 1.0 | Sow and weaner |
| 12-16 | 20-40 | 2 | " |
| 16-18 | 40-50 | 2.5 | Finnisher |
| 18-24 | 50-84 | 3.0 | " |
| 24-28 | 84-105 | 3 | " |
NB: When feeding animals any sudden changes can lead to loss of production. Thus feed changes should be as gradual as possible.
Water requirements
Clean and fresh water should be provided ad lib to all categories of pigs. Lactating sows will take 15- 25 litres/day of water depending on litter size. Dry sows and boars will take up to 10 litres/day while pregnant sows will take 12-14 litres/day. Fatteners 4 to 8 litres/day depending on age. At higher environmental temperatures, the water requirement increases.
Feeding Methods
The methods of feeding to be recommended will depend on the number of pigs to be fed, the rate of gain desired, the type of pig and the amount of labour available. Feed trough use is recommended.
- Dry feeding. Feeding dry feeds. This is best for pelleted feeds but there is wastage and dusty conditions when the feed is in the form of dry meal or mash.
- Wet Feeding. This is the feeding system where water is sprinkled on the feed to minimize the dust. Strict hygiene should be maintained in this method. Less feed wastage unlike the dry feeding and reduced lung irritation caused by dry dusty feeds.
- Restricted Feeding. In this feeding regime pigs are fed once or twice per day. Feeding twice per day is recommended.
Common pests and diseases in pigs
Pigs are at great risk of falling ill because many animals are kept together in a small space. Infectious diseases spread easily and quickly among the animals. You will also find that commercial breeds tend to be less resistant to diseases.
Sick pigs generally have the following signs:
- It may not eat or not show interest in feed /water
- It may breathe rapidly indicating of a fever
- In white skin-coloured pigs the skin may become reddish.
- It may have diarrhoea which may sometimes be bloody or blood stained.
- Droopy ears or ears pointing downwards.
- Dull eyes.
- Dull skin and hair.
- Its tail will become limp.
- Separates itself from the rest
Parasitic diseases
Parasites are divided into external and internal parasites.Internal parasites (Worms)
Worms are one of the most serious threats to pig keeping.
There are more than 30 types affecting the intestines of pigs. The most important are the intestinal roundworm, the lung worm, the whip worm and the tape worm.1) Roundworm
Roundworms live in the gut and take food from the pig. The pig can therefore become thin. Symptoms:
- Anorexia (loss of appetite) in advanced stages.
- Anaemia (loss of condition).
- Weight loss in later stages.
- When the worms die suddenly after treatment, they can block the gut and cause sudden death.
- Control with medicine in the food is useful and provide clean and dry pens.
- Separation of young ones from adults.
- Washing sows before farrowing.
- If pigs are allowed outside, rotational grazing and periodic resting of pastures to allow disinfection.
- Periodic deworming
- Herbal treatment: herbs such as Moringa are considered to be antihelmintic ( able to kill intestinal worms)
2) Whipworm
Symptoms:
- Anaemia
- Haemorrhagic diarrhoea causing anaemia
- Weight loss
- Deworming
3) Lungworm
Symptoms:
- Coughing
- Deworming
- Clean pens
- Riperol (or Levamisole) injections are used in treatment, but are may be difficult to obtain in many places.
4) Tapeworm (measles)
Pork measles is caused by tapeworms which live in the muscles of pigs. They do not usually affect the pig, but can lead to pain and the pig may find it difficult to move around.
When people eat undercooked measly pork, the worms develop inside the people, and can make them very sick.Symptoms:
- Poor growth
- Rough grey hair coat
- Swollen belly
- Emaciation
- Anaemia
- Prevent the pigs from wandering about where they can feed on human faeces
- Make sure that people working with pigs use toilets (hygiene and sanitation)
- Deworming
External parasites
External parasites include mange, lies and myiasis (see below).Mange
It is caused by small parasites called mites that live in the skin. They provoke severe itching and irritation.Symptoms
- The pig becomes itchy, and scratches and rubs against the walls of the sty and other objects with the skin between the legs, around the eyes, ears and neck being principally affected.
- The coat looks dull, and there are bare patches, heavy crusts, and lines on the body that look like ribs
- Restlessness and itching which can be very severe
- Red pimples on skin, which turn into crusts and scabs. Later the skin looks very rough, is thickened and covered with flakes scratching. Skin may show red spots or bite wounds
- Thick skin and rough hair coat
- Anaemia in severe cases especially in piglets
- Death in severe cases
- Wash the sow before farrowing at least twice at a one week interval.
- Boars should be washed at least four times a year.
- Treat gilts upon entering the farm and before serving.
- Wash all pigs at the beginning of fattening if mange is already a problem.
- General cleanliness.
![]() |
| Crusts seen within the ear of a pig due to mange infestation |
| © S. Gikonyo, Kenya |
- Remove scales and dirt with soap and water and a stiff brush.
- Afterwards the pig should be washed with organophosphate compounds. Repeat this treatment several times
- Ivermectin injection is a very effective treatment against mange and all other parasites. Spraying the animals with cattle dip also kills many parasites on the skin
- Herbal treatment: Smearing with coconut oil can be an effective control in cases of light contamination
Lice
These are blood suckers that also cause irritation of the skin.
Symptoms
- Itching
- Skin may show red spots or bite wounds.
- Thick skin and rough hair coat.
- Anaemia in severe cases especially in piglets.
- General cleanliness
- Treat piglets before putting them in fattening house. Fatteners don't need to be treated
- Treat gilts before first service
- Treat boars twice a year
- Treat new stock on arrival and seven days later. Piglets below three weeks should not be treated
- The insecticide benzene hexachloride is a very effective remedy (0.1 - 0.25% solution) against lice. Treatment should be repeated after 7 days since the insecticide only kills adults and not eggs.
- Lice can be kept away to a certain extent by planting a pole sturdily in the ground at an angle of 45° with an old sack wound around it immersed in crude oil or used motor-oil.
Myiasis
Disease caused by flies, which lay eggs in the wounds. The eggs hatch into larvae which live and feed on the flesh and fall off when they mature, creating more wounds.Symptoms
- Infected wounds look very wet and dirty and the edges can be covered with a grey mass which are the eggs of flies.
- Later on, larva can be seen as screw-shaped pinkish worms crawling through the wound.
- The pigs show annoyance and try to find a shady place.
- Death may occur.
- Clean the wound daily with water and disinfectant then apply insecticide on wound to cover edges too.
- Best working insecticides are the long-acting ones e.g. diazinon or supona.
- Good mange control program to prevent wounds smooth walls and floors.
- Do not use sharp objects.
- Avoid overcrowding to reduce fighting.
- Tail docking, ears notching and castration should be handled properly and the umbilical cord disinfected.
General recommendation
1) Deworming - Boars - every 6 months
- Sows - 2 weeks before farrowing and after weaning
- Piglets - 1 week after weaning
- Fatteners - 1 week after weaning and 3months latter
- Gilts - 1 week after weaning, at 3 months and at 7months of age and at least 2 weeks before service
2) Control of Lice, Fleas, Mange
- Scrub sows with Gamma BHC insecticides four days before farrowing.
- Clean and scrub the farrowing pens before use.
Reproductive Disorders and Diseases
These include, Brucellosis, mastitis, leptospirosis, endometritis and agalactia.
For more information see here
Anaphrodisias
When the sow does not come on heat
Symptoms:
- No heat signs
This could be caused by low body weight due to poor feeding, overweight, mineral deficiency, intestinal worms, chronic disease, the animal has just given birth, heavy infestation with parasites
- Improve feeding of mineral-rich feeds.
- Regularly deworm your animals.
- Allow the female to stay with the boar.
- Gilts should not be treated at all because they may show anaphrodisias after every litter
- Sows should be treated on the same day as weaning, and in very severe cases, 3 weeks after weaning
- Repeating treatment is of no use
Parvo (smedi) (virus)
Symptoms:
- Birth of a small litter at the normal time due to Early Embryoric Death (EED) with mummies of different ages together with fresh or macerated dead foetuses and weak living piglets which die in few days.
- No therapy
- Vaccination of all gilts and sows before pregnancy
Leptospirosis (Bacteria)
Symptoms:
- Fever, anorexia, diarrhoea, bloody urine, nervous symptons caused by meningitis.
- Abortion in last three months of pregnancy.
- In sows which are affected later, weak piglets are born.
- Mummified and macerated foetuses are common in the litters.
- Infertility associated with venereal spread may be responsible for repeat breeders.
- Elimination of mice and rats and other roddents.
- Vaccination and hygienic measures. Vaccines are not available for all types of the diseases and vaccination may not prevent bloody urine.
- Treat all sows with injection or streptomycin before serving.
- Use antibiotibics especially streptomycin for all ages.
Brucellosis
Symptoms:
- Anorexia, fever, stiff legs, occasional lameness, early abortion (returns to oestrus 5 - 8 weeks after service as a result of infection of service)
- Infection later in pregnancy gives rise to litter with mummified, still born or weak piglets.
- Bloody vulva discharge and endometritis.
- Retained placenta.
- Boars usually develop orchitis (inflammation of one or both testicles) and epididymitis within seven days of infection.
- The testicles are swollen and painful and permanent sterility can be the result.
- Prevention is based on hygienic measures and purchase of stock from clean herds only.
- Never treat by antibiotics.
- No treatment/vaccination is 100% effective
- Slaughter all animals and do restocking. Restocking should be after one month.
Uterine Prolapse
Symptoms:
- The appearance of the uterus outside the vulva.
- Uterine prolapse reduction is often not possible since it is very traumatic and the best therapy is to amputate the whole uterus. However 50% of sows do not survive this operation, therefore slaughter should be considered.
Mastitis
Bacteria infection causes an inflammation of the mammary organ and results in changes in milk production. These bacteria enter the wounds in the udder. Symptoms
- Swollen, hot and painful udder.
- Absence or reduction of milk in the affected udder.
- Sow refuses to suckle her piglets. As a result, piglets squeal due to hunger.
- Sow has depression and often fever.
- Provide adequate bedding
- Keep pig pens clean, dry and free of sharp objects, clip milk teeth of baby pigs.
- Gently massage the affected udder with lukewarm water.
- Do not allow the young to suck milk from the infected sow.
- Remove the milk from the infected udder and discard.
- Separate sow from piglets and reduce access to teats (allow a few piglets to suckle at a time). If possible, foster piglets to lactating mothers.
- Use antibiotics. Inject penicillin-streptomycin into the muscle of hip or neck.
Endometritis (bacteria)
Symptoms
- Vulval discharge of vaginal or uterine origin during urination.
- In case of metrititis, fever and agalactia may occur.
- Antimicrobial by injection or locally by irrigation of the uterus and vagina, oxytocin can be given to stimulate uteric contractions once or twice a day.
- Hygiene.
Diseases and Disorders of Digestive Tract
Scouring
- Hygienic measures should be taken to avoid or minimize scouring incidence.
- Regular deworming should also be done as a control measure to scouring
- Feed changes should be gradual and not drastic to avoid scouring
Diarrhoea/Enteritis
1) Birth diarrhoea
Symptoms
- Acute diarrhoea in piglets is watery, yellowish grey and within a very short time piglets become thin with sunken eyes due to dehydration.
- Death can occur within 2 - 3 days. Death in piglets can occur even within one day before any sign of diarrhoea is observed.
- Keep pens, feed and watering troughs clean.
- Separate affected animals from healthy animals.
- Do not change abruptly an animal's ration.
- Make sure that piglets have sufficient colostrum within 36 hours of birth
- Vaccination
- Plenty of drinking water with electrolytes
- Use of antibiotics.
- Herbal medicine: Fresh leaves of guava or star apple (Sapodilla) This will treat the symptoms only.
2) Red diarrhoea or Clostridial enteritis
Symptoms:
- Acute haemorrhagic or necrotic inflammation of the gut during the first and second week of birth.
- In acute cases the diarrhoea is watery with an orange-red colour due to blood and is often bubbly.
- In later stages, shreds of dead tissues can be found.
- Piglets are weak and don't suckle. They get pale and die within a few days.
- Vaccination
- Make sure that piglets have sufficient colostrum within 24 hours of birth
- Keep the pigs warm
- Cleanliness
- Contact the vet
3) Transmissible Gastroenteritis
Transmissible gastroenteritis is a common viral disease of the small intestine that causes vomiting and profuse diarrhoea in pigs of all ages. It spreads rapidly. Piglets less than one-week old rarely survive the disease.
Symptoms:
- Very high mortality mainly in piglets upto 14 days old.
- The piglets often vomit and have severe greenish-yellow watery diarrhoea, dehydration.
- In sows the diarrhoea is greyish, they vomit, and abortion may occur.
- In fatteners the symptoms are like those in sows.
- Give electrolytes to piglets and keep them warm.
- Antibiotics prevent secondary infection but don't provide a cure.
4) Fat diarrhoea
Symptoms:
- Faeces are pasty and fatty, white or yellowish
- Remove creep feed for a few days.
- Use antibiotics as prescribed by a veterinary doctor.
5) Post diarrhoea
Symptoms:
- Diarrhoea with no traces of blood.
- Death from dehydration or blood poisoning (septicaemia).
- Increase creep feed before weaning.
- Avoid stress to piglets by not mixing piglets from different litters.
- Good hygienic measures include roughage in diet.
- Use antibiotics as prescribed by a veterinary doctor.
Salmonellosis
Symptoms:
- High fever, dullness, anorexia, weakness, nervous symptoms.
- Bluish-red colouring of the ears, limbs and the centre of the belly.
- Bloody spots all over the body.
- Wasting and persistent greyish diarrhoea sometimes mixed with blood and shreds or necrotic material from the gut.
- Normal hygienic measures, pelleted feed, thorough cooking of the swill.
- Remove feed for two days and provide clean water.
- Use antibiotics as prescribed by a veterinary doctor.
Swine Dysentry
Known by a number of names, including bloody diarrhoea, hemorrhagic enteritis bloody scours and black scours. It affects pigs of all ages, sometimes causing death. Symptoms:
- In acute cases wasting and passing of diarrhoea containing varying amounts of mucus, blood and necrotic material.
- Fever.
- In chronic cases, pigs have greyish or brownish faeces, rough hair coat and low growth rate.
- Delay reusing the pens of infected animals.
- Disinfect pens.
- Some herbal medicines (Moringa tree leaves) can be used to relieve the symptoms of diarrhoea and dehydration
- Use antibiotics as prescribed by a veterinary doctor
Post weaning syndrome (oedema disease)
Symptoms:
- Development of oedema and nervous signs.
- Paleness peculiar squeaky voice.
- General incoordination and loss of balance.
- Sudden death.
- Affected piglets should be weaned by removal of sow and placed on low-level diet.
- Avoid stress.
- Hygiene.
- Include roughages in diet.
- Use antibiotics as prescribed by a veterinary doctor
Diseases of the Respiratory Tract
These include, influenza, pseudorabies, pneumonia, atrophic rhinitis and pasteurellosis.
Influenza
Symptoms:
- Affected animals are apathetic.
- Anorexia
- High fever, coughing and sneezing, difficulty in breathing
- Red eyes with discharge
- Loss of condition.
- Good ventilation.
- Vaccination.
- No specific treatment. To prevent secondary infection, use antibiotics as prescribed by a veterinary doctor .
Pleural Pneumonia
Symptoms:
- Acute cases show anorexia, high fever, laboured respiration, red or blue colouring of ear-tips, belly, legs and end of tail.
- Death within 4 - 6 hours of onset of clinical symptoms.
- Blood stained froth from mouth or nose.
- Abortion.
- In chronic cases, anorexia, coughing and depressed growth rate.
- Vaccines only prevent mortality.
- Use antibiotics as prescribed by a veterinary doctor.
Atrophic rhinitis (inflammation of the nose)
Symptoms:
- Sneezing in younger pigs.
- Shortening or deviation of upper jaw - poor growth
- Hygiene
- Use antibiotics as prescribed by a veterinary doctor
Pasteurellosis
Symptoms:
- Coughing
- Breathing through the mouth.
- Hygiene.
- Use antibiotics as prescribed by a veterinary doctor
Porcine Respiratory and Reproductive Syndrome (PRRS)
Symptoms:
- Blue ears and forced breathing
- Lactating sows have rough hair coat.
- Gilts have problem getting on heat and early abortion.
- High mortality in weaners
- In boars, high percentage of defective sperm and less libido
- Use of antibiotics as prescribed by a veterinary doctor.
- Vaccination helps but it is so expensive that it may not be cost effective.
Disease Causing Problems in Walking
Arthritis
Symptoms:
- Inflammation of joints. Thick soft joints.
- Use antibiotics as prescribed by a veterinary doctor.
Streptococcal infections
Symptoms:
- Septicaemia (blood poisoning) which may cause immediate death.
- Young pigs rarely recover
- Sudden death in older pigs.
- Fever, nervous signs and arthritis mostly in weaners and fatteners.
- Proper hygiene. Wash sow before it enters the farrowing pen.
- Use antibiotics as prescribed by a veterinary doctor.
Greasy Pig Disease
Symptoms:
- Thin, pale brown flakes on the skin surface.
- Wet skin covered with crusts.
- Rough wet and reddish skin below the crusts, no itching
- Death may occur
- Avoid fighting among pigs by mixing pigs from different pens.
- Teeth clipping, soft bedding
- Hygiene. Wash sows before entering farrowing pen.
- Use antibiotics as prescribed by a veterinary doctor.
Nutritional Disorders
Anaemia
Symptoms:
- Pale skin, weak piglets with high respiratory rate.
- Jaundice
- Blood stained faeces.
- Early death
- Provide iron injection or oral iron- paste containing iron
- Feeding compost- must be of good quality and supplied daily. Compost of poor quality may contain bacteria.
- Wood ash can also be put into the pen. This will not provide iron, but it does contain other important minerals.
Other Diseases
Foot and mouth disease (FMD)
Foot-and-mouth disease is an acute, highly contagious, viral disease of animals with hooves, such as cattle, water buffalo, goats and pigs. Symptoms:
- Sudden onset of severe lameness, fever, formation of vesicles on coronary bands.
- Blisters can be found on thin-skinned areas like udder, teats, anal area and eyelids. These blisters rupture within one day.
- There may be frothy saliva, anorexia, sometimes hooves become loose and fall off.
- Sows may abort.
- Vaccination
- Quarantine
- Proper cooking of swill.
- Slaughter and burial.
African Swine Fever (viral)
Symptoms:
- Lesions on the body
- Fall in temperature before onset of clinical signs.
- Reddening of skin and ears.
- Incordination of hind limbs.
- Constipation diarrhoea, anorexia.
- The animal dies the next day after the attack. 95 - 100% mortality.
![]() |
| A pig with African Swine Fever, showing a bluish-purple colour and bleeding under the skin. |
| © S. Gikonyo, Kenya |
- Quarantine.
- Boiling of swill.
- Restriction of movement of meat from infected areas
- Vaccination
- Disinfection
- No therapy (treatment)
Anthrax (bacterial)
Rare in pigs and associated with contaminated feed containing meat.Symptoms:
- Oedema and swelling of the neck region.
- Dysponea (breathing difficulty).
- Fever, anorexia and passage of bloody faeces.
- Sudden death.
- Use antibiotics (penicillin) as prescribed by a veterinary doctor.
- Thorough disinfection of the farm and burning of carcasses.
Information Source Links
- AIC Documentation Unit, Kenya
- Livestock production extension manual (MoLD - Kenya) (2008).
- Wabacha, J.K., Mribei, J.M., Mulei, C.M., Kyule, M.N., Zessin, Z.H. and Oluoch-Kosura, W. (2004). Characterization of smallholder pig production in Kikuyu Division, Central Kenya. In: Preventive Veterinary Medicine 63 (3) pg 183-195.

Back















































